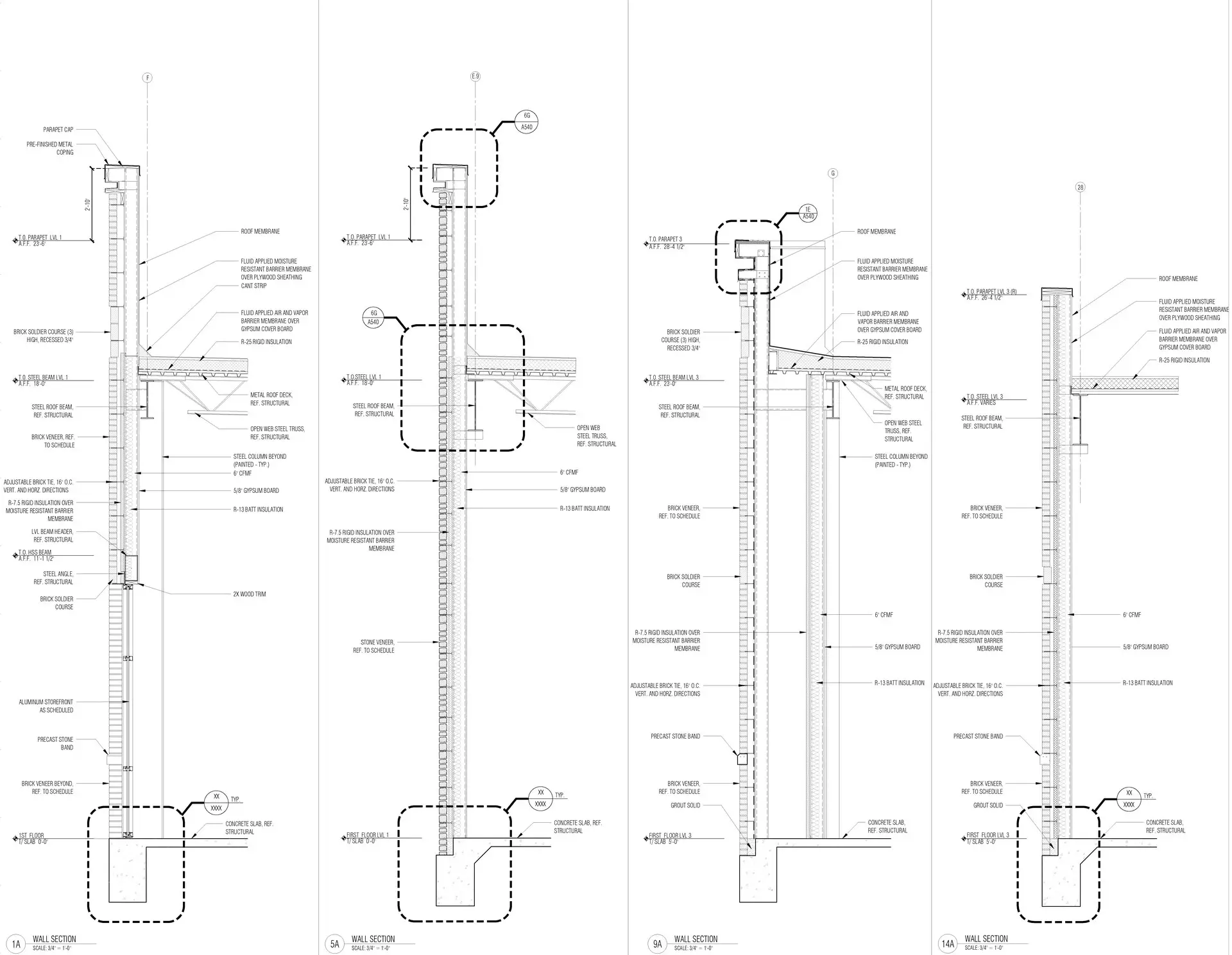
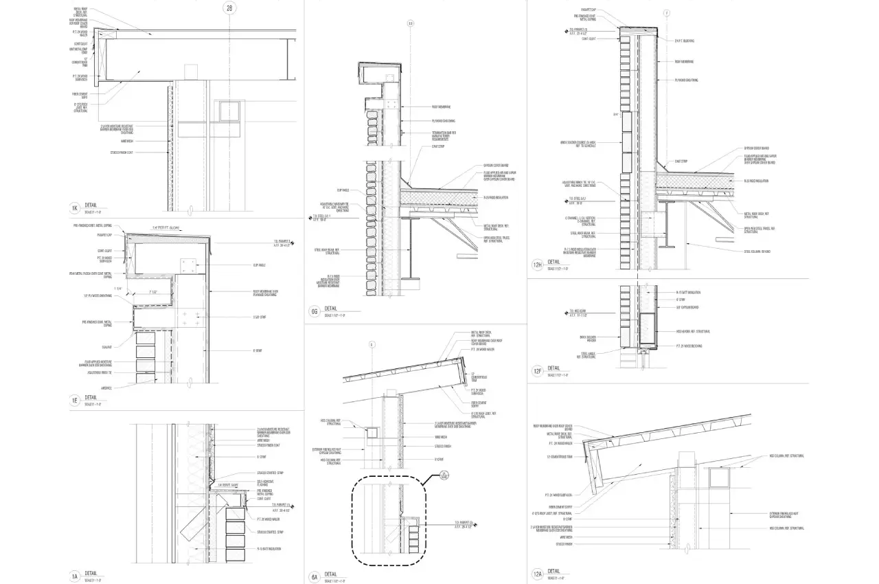
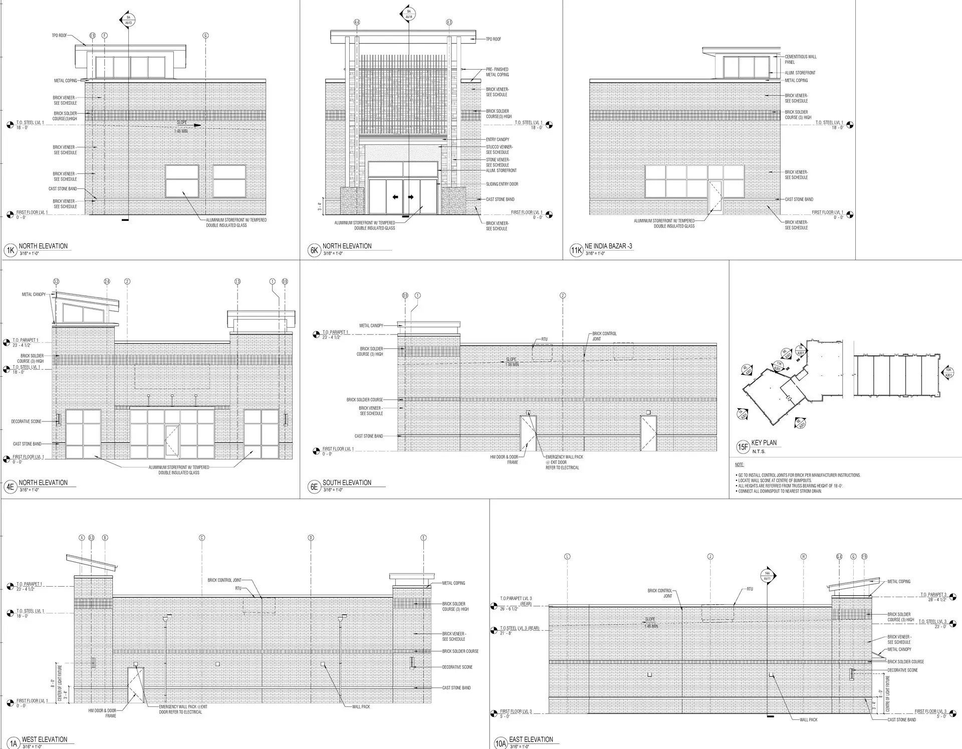
Construction Drawings
A selection of detailed Revit drawings created for the India Bazar project, showcasing the depth and precision of our documentation.

North Elevation

Storefront Elevations

Wall Section

Drawings Details

South Elevation

West Elevation